Oberboihingen, Einfamilienhaus

Hochbau
Kenndaten:

Auftraggeber: Manfred Pötter Bauunternehmen GmbH
BRI: 746 cbm
Wohnfläche: 158 qm

Projektbeschreibung:

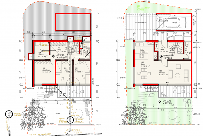
Dieses Einfamilienhaus überzeugt durch eine klare Architektur und eine durchdachte Raumorganisation über drei Ebenen.
Im Untergeschoss befinden sich großzügige Neben- und Hobbyflächen mit direktem Bezug zum Außenraum. Das Erdgeschoss bildet den zentralen Lebensmittelpunkt mit offenem Wohn- und Essbereich, der sich zur Terrasse und in den Garten öffnet. Eine integrierte Garage ist funktional angebunden.

Im Dachgeschoss entstehen unter dem markanten Satteldach helle Schlafräume und ein Bad, ergänzt durch eine großzügige Dachgau-be mit zusätzlichem Raumgewinn.
Durch die Hanglage ist das Gebäude teilweise ins Gelände eingebunden und fügt sich selbstverständlich in die Topografie ein.

← Hochdorf, Breitwiesenschule ↑ Zurück zur Übersicht Calw, ZOB →