Albbruck, Gesundheitspark Hochrhein

Plaza
Kenndaten:

Auftraggeber: Landkreis Waldshut
Planungszeitraum: 2023-2024
Platzfläche: ca, 5.700 m²

Projektbeschreibung:

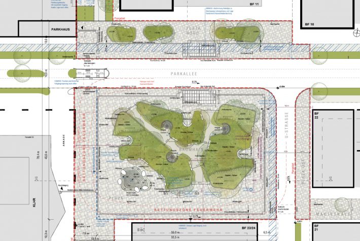
Die Zentrale Freifläche im Masterplan „Gesundheitspark Hochrhein“ befindet sich direkt vor dem Haupteingang des neuen Hochrheinklinikums - sie wird damit dem Anspruch einer Plaza gerecht und ist der wichtigste Orientierungs- und Anlaufpunkt im Quartier. Es wird ein hoher Anspruch an die Gestaltung und Möblierung der Verkehrs- und Freianlagen gestellt. Hierfür ist auch die Wahl entsprechender Materialien ausschlaggebend. Das markante Gestaltungsthema ist der Baumhain, eine kleine Variante des Waldes, Sinnbild für Frische, Natur, Erholung und Gesundheit, das somit dem Anspruch an den Standort gerecht wird und gleichzeitig die vielfältigen Funktionen erfüllt, die an die Fläche gestellt werden. Während in der Höhe große Baumkronen wirken und Schatten spenden, ist auf Augenhöhe eine Durchlässigkeit geplant. Hier wachsen in Pflanzbeeten Gräser, Stauden und kleinen Büsche und bieten ganzjährig abwechselnde Blütenphasen und einen guten Lebensraum für Insekten.

Um den Baumhain entsteht eine befestigte Platzfläche aus großformatigen Platten, die im römischen Verband verlegt werden. Hier befinden sich die Hauszugänge, Feuerwehrzonen und Platz für besondere Veranstaltungen wie Marktstände und Foodtrucks. Zahlreiche Sitzgelegenheiten mit unterschiedlichem Charakter und ein Wasserspiel ergänzen die Konzeption, so dass hier eine einladende Aufenthaltsfläche entsteht. Eine weitere Qualität ist, dass der Baumhain begangen werden kann. Dieses Eintauchen in Natur und Frische soll möglichst intensiv erlebbar sein, wofür der Bodenbelag geändert und der Pflanzbeetniveau angehoben wird. Sitznischen werden mit einer Rankpergola in Cocoonform überbaut und stellen ein markantes Gestaltungselement dar.

← Waldenbuch, Lindenstraße Nord ↑ Zurück zur Übersicht Waldenbuch, Liebenau VII →